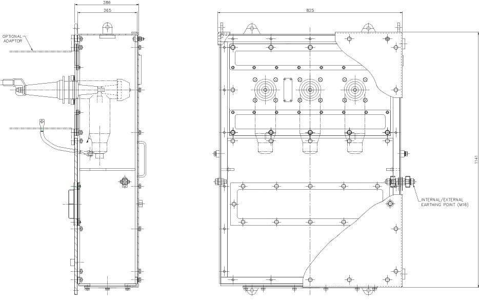
A perfect solution for larger rated HV motors and HV generators operating in a Zone 1 and Zone 2 hazardous area. With options for in-line or triangular terminal arrangement. The In Line version is 800mm wide and can be supplied with extensions allowing 3 supply cables per phase (certified) or 4 (uncertified).
The Euromold terminal box assembly continues to be the preferred choice for OEM’s and Service Providers alike, with many thousands of enclosures supplied worldwide.

The Euromold box is fabricated from steel plate. The terminals are of a stud type, mounted in an epoxy resin base and connected internally to the stator winding cables. Supply cables are terminated using Euromold connection elbows. These are normally provided by the cable contractor, but can be provided with the terminal box if full and comprehensive dimensional details of the cable are available. Mechanical and weatherproof protection is provided by a fabricated steel enclosure provided with a removable gland plate.
The enclosure can also be fitted with a pressure relief diaphragm of tinned copper foil, held by a clamping frame in the back of the terminal box. In the event of a fault developing between phase and earth, the rapid expansion of gases within the terminal box will fracture the pressure relief diaphragm and direct the path of flame or hot gas either outside the equipment carcass from behind the terminal box or optionally into the equipment interior. A mesh guard is fitted to protect the relief diaphragm from mechanical damage.
A full range of spares to support this terminal box assembly are available.